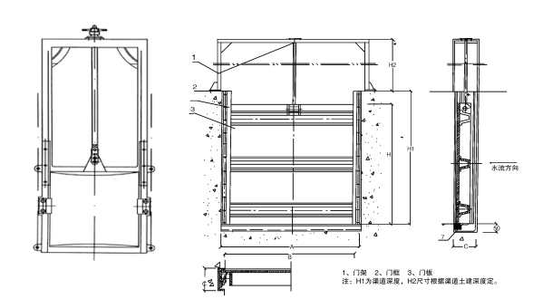
机闸一体式插板闸门
参数
- 材质分为铸铁、碳钢、不锈钢三种
- 规格500-2500(铸造结构整体式),3000(铸造结构组装式)
适用领域
给水排水工程,用以截断渠道内的水流。
产品介绍
机闸一体闸门巧妙的将闸门与启闭机联为一体。适用于渠道安装。无须设定启闭机平台,安装方便。小规格的采用整体铸造,较大规格采用组装式。
- 产品参数
- 技术特点
- 产品尺寸
- 安装指南
- 工况实例
-
过水断面 与渠道等宽 启闭方式 手动或手电两用螺杆式启闭机 主要构成 框架、闸板、丝杆、螺母等 安装要求 包括但不限于安装指导、问题协调、安装质量检测、组织验收等 -
结构简单,安装方便,橡胶密封,止水性能好
-

相关推荐








